アパート第五コーポ白取1階2号室
情報更新日:2026-04-01
| 所在地 | 間取 | 月額賃料 | 専有面積 バルコニー面積 |
共益費 管理費 |
敷金 礼金 |
|---|---|---|---|---|---|
| 青森県 青森市 西滝1丁目 | 2DK | 31,000円/月 |
44㎡ ─ |
─ ─ |
1ヶ月 31,000円 ─ |
中村豊医院近く 1階 生活保護の方OK
本物件の内容や画像等は全て現況優先とさせていただきます。各画像は参考図となります。
![]() |
![]() |
| 交通機関 | 青い森鉄道 青森駅 車12分 | ||
|---|---|---|---|
| 学区 | |||
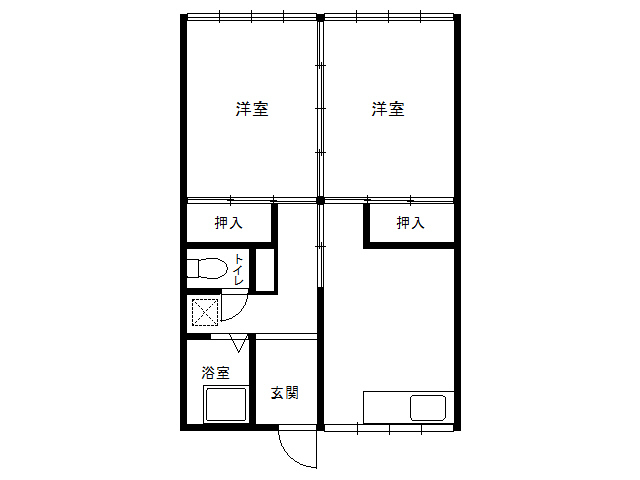
| 詳細間取 | 2DK (洋6帖×2、DK6帖) | ||
| 周辺施設 | |||
| 駐車場 | 敷地内 3,000円 | 建物構造 | 木造 地上2階建 |
| 駐車場複数台 | 不可 | 主要採光方向 | 不明 |
| 仲介料 | 34,100円 | 周辺環境 | |
| 保険又は共済 | 加入不要 | 入居可能日 | 即入居可 |
| 保証金 | 築年月 | 昭和58年1月 | |
| 権利金 | 取引態様 | 仲介 | |
| 保証会社 | |||
| その他費用 | |||
| トイレ | 洋式 独立 水洗 | 風呂 | 有 シャワー有 給湯式 |
| 設備 | 上水道設備(公営) 下水道設備 給湯(ガス) 下駄箱 洗濯機置場 照明器具 | ||
| 備考 | 生活保護の方 普通賃貸借 ※同業他社による客付け可 | ||
| 取扱業者 |
(有)大雄不動産商事 青森県知事免許(7)第2610号 青森県青森市千富町1丁目14番1号 TEL:017-782-3310 FAX:017-782-5510 (公社)青森県宅地建物取引業協会会員 東北地区不動産公正取引協議会加盟事業者 |
||













